Case Study
Sister Lillian Murphy Community
San Francisco, CA
2021
Challenges:
site threats; energy efficiency at scale; multiple stakeholders
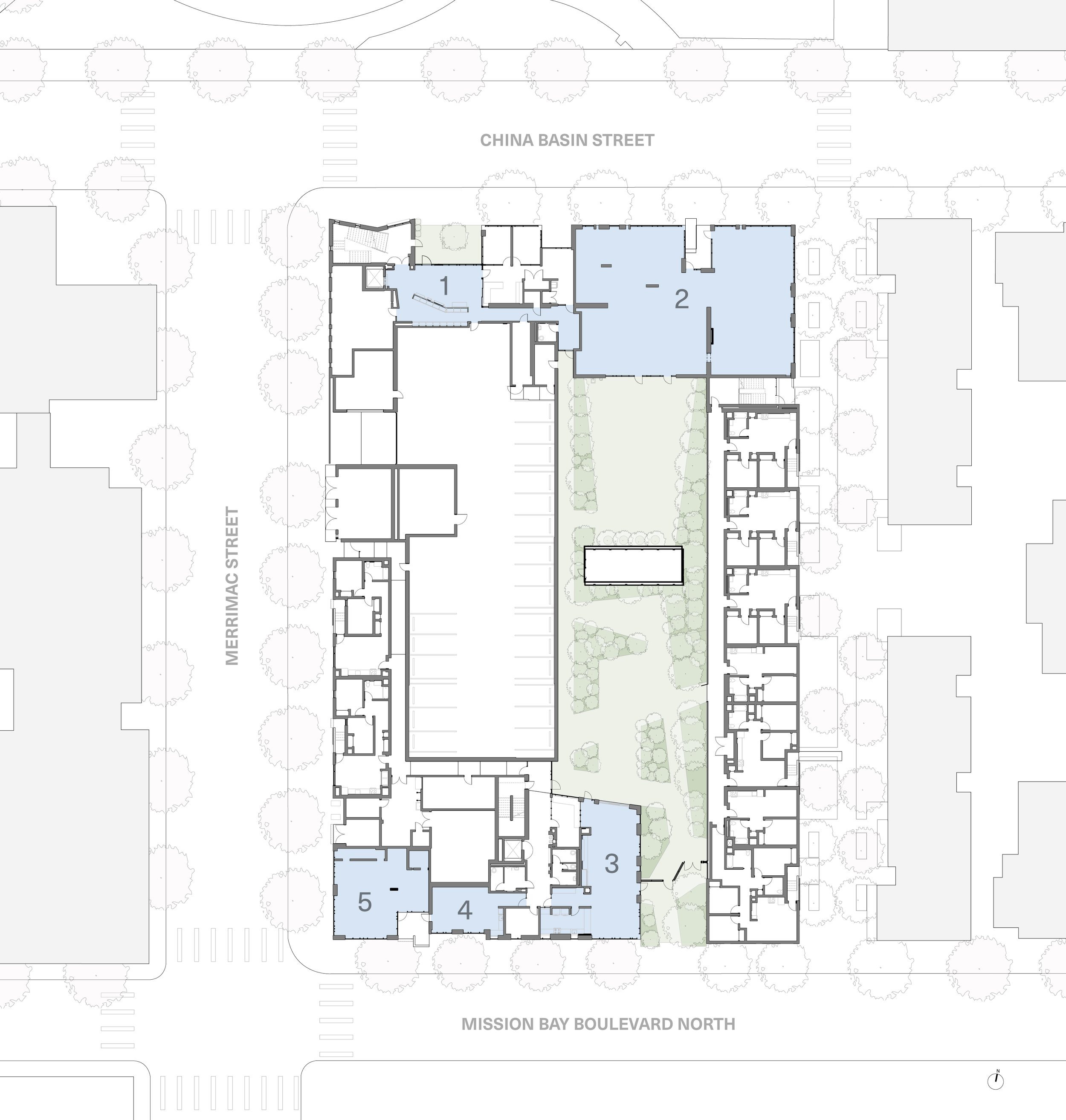
For the Sister Lillian Murphy Community, we were approached by Mercy Housing to design a multi-family residential building in San Francisco’s Mission Bay neighborhood. The project is distinct in its pursuits toward combatting homelessness and family displacement due to the rising cost of housing, and enhancing economic and environmental sustainability. Today, the Community serves 430 low-income residents as a community-focused development that spans seven stories and 152 units. In addition to its significant energy efficiency features, the design stands out through the incorporation of exemplary services available to both residents and the wider neighborhood, including a child development center, music school, and flexible space for gatherings.
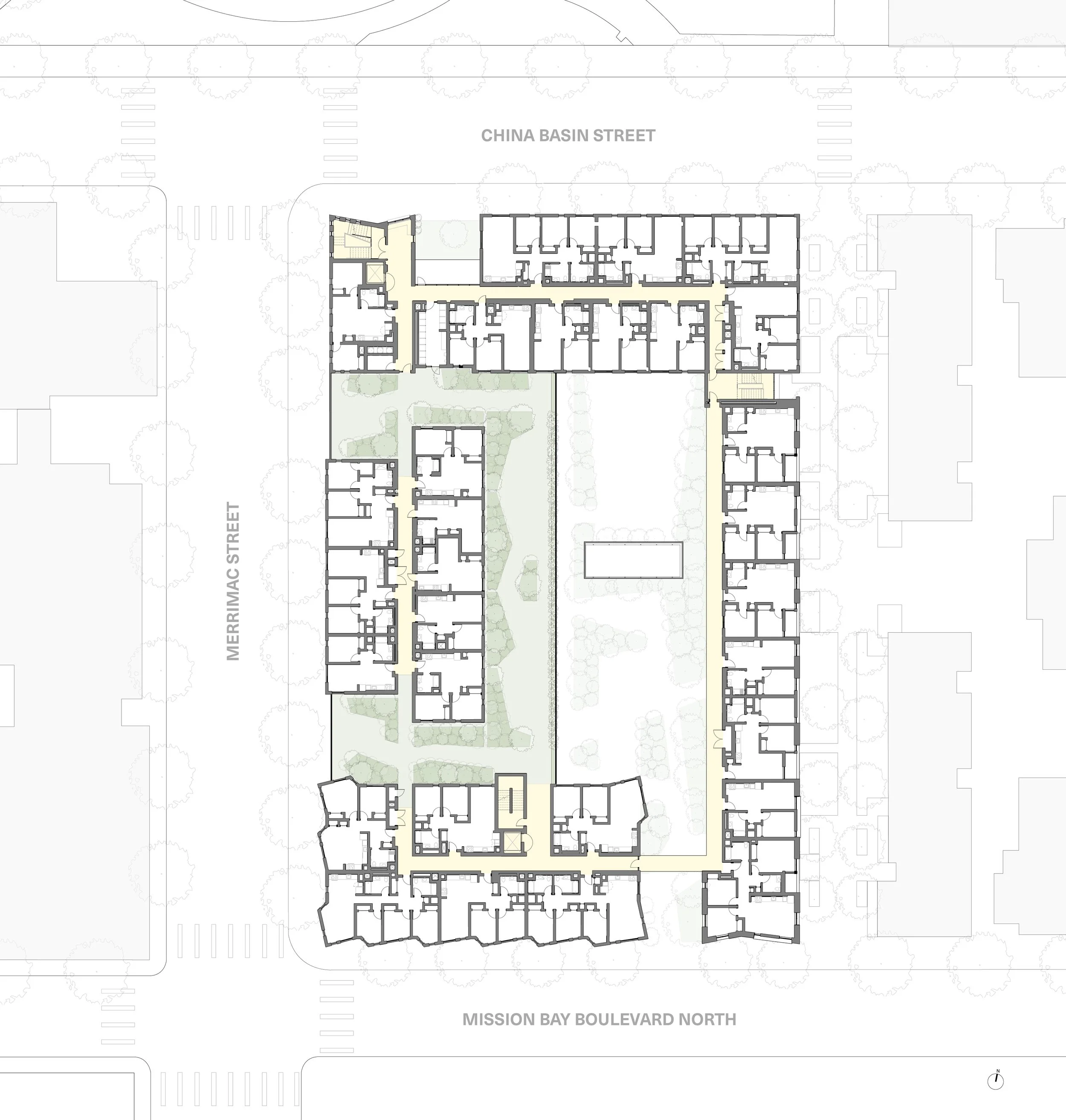
Given the Community’s emphasis on togetherness, we conceived the development as four connected buildings centered around a courtyard planted with age-inclusive and drought-tolerant hardscape and landscape features. The varying scale, materiality, and visual texture of each wing encourage equitable yet distinct micro-neighborhoods. The intimately scaled groupings and four separate identities foster close connections among the residents of each building, a key variable within the 191,000-square-foot development. The entire development is porous with open-air circulation and visual connections to the surrounding neighborhood to further enhance a sense of place and connection, as well as passive ventilation.
Beyond the development’s exemplary emphasis on community engagement and equity, the seven-story building also exceeds California’s stringent energy standards, gaining GreenPoint Rated Platinum certifications. To achieve this status, we incorporated energy efficient measures into the design from the outset. Photovoltaics offset energy use throughout the building. Inside the units, energy-saving strategies include electric heating and stoves, LED lighting, Energy Star-rated appliances, ample daylighting through generously sized windows, and outdoor circulation with photocell lighting controls. Exposed concrete walls on the south side of the development offer passive thermal cooling and heating benefits, while sunshade formats respond to solar orientation. A fast EV charger in the garage, with all parking spaces being EV capable/EV ready, promotes electric vehicle use, and designated car-share vehicle parking spaces encourage car sharing.
View within courtyard
External Circulation
Site Plan
Concept Diagram
Level 1 Plan
1 Lobby
2 Child Development Center
3 Community Room
4 Teen Room
5 Music School
Level 2 Plan
Level 3 Plan
We consider the resiliency of the building a key factor in its long term success. In taking this view, we identified the neighborhood’s actively sinking soil as both an ongoing challenge that could become a significant future risk factor to both the site and the surrounding streetscape, as well as a potentially large maintenance cost, if not properly and thoroughly addressed. We worked with the geotechnical engineers at Langan to estimate the rate of soil settlement, which informed how we designed the entries around the perimeter of the building. The entire building and midblock courtyard are supported by a single concrete slab foundation with piles extending over 200 feet to bedrock, to ensure that the development remains stable. The estimated rate of settlement of the surrounding sidewalks led us to design perimeter entry walkways with hinged concrete slabs/steel bridges, buried concrete steps and unit pavers that can be easily reset to new slopes in the future, so that all entries to the site remain accessible as the surrounding sidewalks sink. Buried concrete steps will be slowly revealed over time and, when the entire run of steps are exposed, the Owner has handrails in storage that they can easily install to respond to the condition.
Through these holistic efforts, the Sister Lillian Murphy Community not only sets a benchmark for excellence in sustainable living but also fosters a healthy, vibrant, and resilient environment for its residents. The project serves as a valuable model for other communities aiming to develop sustainable and inclusive housing solutions.
Entry to the music school
Entry walkways are designed to respond to the sinking sidewalks. Mitigation measures include hinged bridges, buried steps and unit pavers that can be easily reset to new slopes.
Entry to residential unit along the Pedestrian Mews
Main residential lobby entry
Credits
Photography by Bruce Damonte
Videography by Marcus Hanschen
